As-built data acquisition of 470 buildings in the city of Bochum in order to prepare CAD plans for the new CAFM system - discreetly and without disrupting ongoing work.

Client
Lorem ipsum dolor sit amet, consectetur adipiscing elit. Suspendisse varius enim in eros elementum tristique. Duis cursus, mi quis viverra ornare, eros dolor interdum nulla, ut commodo diam libero vitae erat. Aenean faucibus nibh et justo cursus id rutrum lorem imperdiet. Nunc ut sem vitae risus tristique posuere.
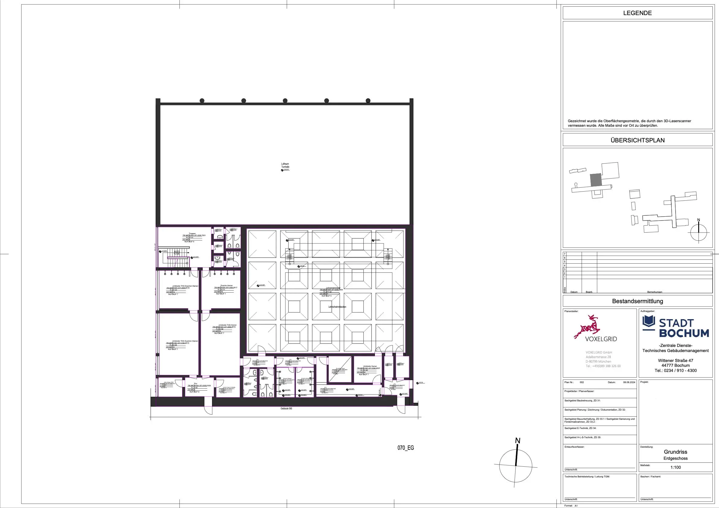
FSP Consulting GmbH is taking on an extensive project for the city of Bochum to record as-built data. The aim of the project is to prepare the existing CAD plans and provide them with the necessary attributes for the introduction of the new CAFM system (Computer-Aided Facility Management). This project comprises the acquisition of 470 buildings with a total gross floor area (GFA) of 500,000 m². The project will be carried out while the buildings are in operation, both inside and outside, and is scheduled to last eight months.
- Acquisition of inventory data: Alphanumeric and graphical master data is required for the implementation of the Spartacus CAFM system. The graphical data includes detailed 2D CAD plans, while the alphanumeric data depicts various building characteristics, such as room designations, floor coverings and lighting conditions.
- Preparation of existing plans: Existing CAD plans are digitized and prepared in order to adapt them to current requirements. Particular attention is paid to quality and accuracy.
- Combination of new measurements and control of existing data: Both new measurements and control measurements are carried out to ensure that all deviations are within the DIN standards.
The buildings are measured during ongoing operations without disrupting them. Thanks to the innovative Voxelgrid technology, we can carry out the survey seamlessly and without interruptions. In close coordination with those responsible at the city of Bochum and the users of the buildings, we ensure that everything runs smoothly.
A key advantage of our solution is that no photos are taken and therefore no personal data is recorded. Our laser scanner technology only records individual points in the environment and is independent of the presence of people or furniture. Even in busy and furnished rooms, the capture quality remains consistently high. In this way, we enable data protection-compliant, precise and discreet surveying without disrupting operations.
All recorded data is first checked before it is imported into the new CAFM software. Specific technical requirements are also taken into account to ensure smooth integration of the data into the system. The data is transferred step by step in predefined work packages, which are continuously checked for quality.
This project represents an important step in the digital transformation of the City of Bochum's facility management and ensures long-term, efficient management of the city's properties.
For further information or inquiries, please do not hesitate to contact us at any time.